電話:0512-57571599
手機:13358054159
郵箱:rimy@so-k.com.cn
地址:江蘇省昆山市高新區錦淞路268號4棟
AHU離心風機是屬于通風系統中必不可少的一個重要部分,而AHU風機節能改造能夠為各種場所提供充足新鮮的空氣,保障環境的安全和清新。ahu改造的真正目的就是為了迎合環保冷卻的理念,讓通風系統更加的節能環保。

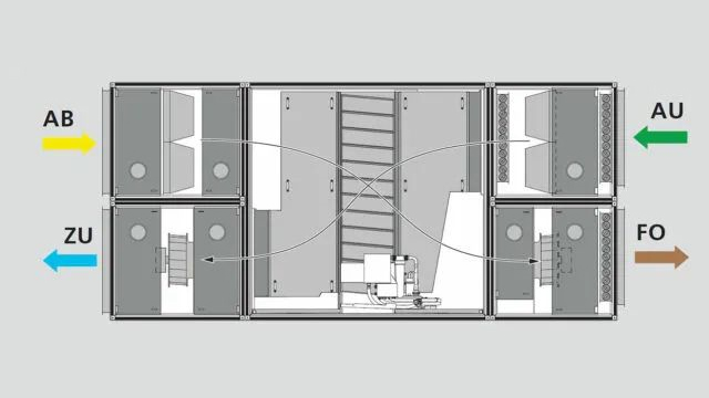
AHU的獨特之處在于它采用的技術,這是一種基于間接蒸發冷卻的技術方法(Ka2O技術)。將使用過的空氣從內部吸入,再用小噴嘴淋濕,水蒸發能夠從廢氣中提取出熱量。而在Ka2O逆流交換器之中,吸進去的外部熱空氣會由冷廢氣冷卻,這兩者之間不會混合。最后外部的空氣經過過濾,會進入內部。
冷卻后的空氣在進入內部后,就到了AHU離心風機發揮作用的地方了。AHU離心風機具有高性能的葉輪,非常的堅固、振動小,能夠承受高背壓。并且還采用的是綠色科技的EC電機,具有高效率和低功耗的特點。因此AHU風機非常適用于AHU系統中,它能夠克服熱交換產生的高背壓,也非常契合環保冷卻的理念。
相比于傳統的制冷機組,AHU風機節能改造是無需化學制冷劑或者機械冷卻的,除了水泵和AHU風機需要消耗一些電力和水外,幾乎無需任何其他物質,這使得AHU改造非常環保,并且具有很高的能源效率,幾乎不會產生二氧化碳。這也是越來越多場所使用AHU改造來減少碳足跡的原因。

AHU風機節能改造能夠為各種場所提供一個理想、安全的環境。首肯電子12年致力于風機的生產銷售服務,提供定制化的"綠色智能"解決方案,大量現貨,合作零距離,提供產品及技術服務。
